Trabajo académico grupal
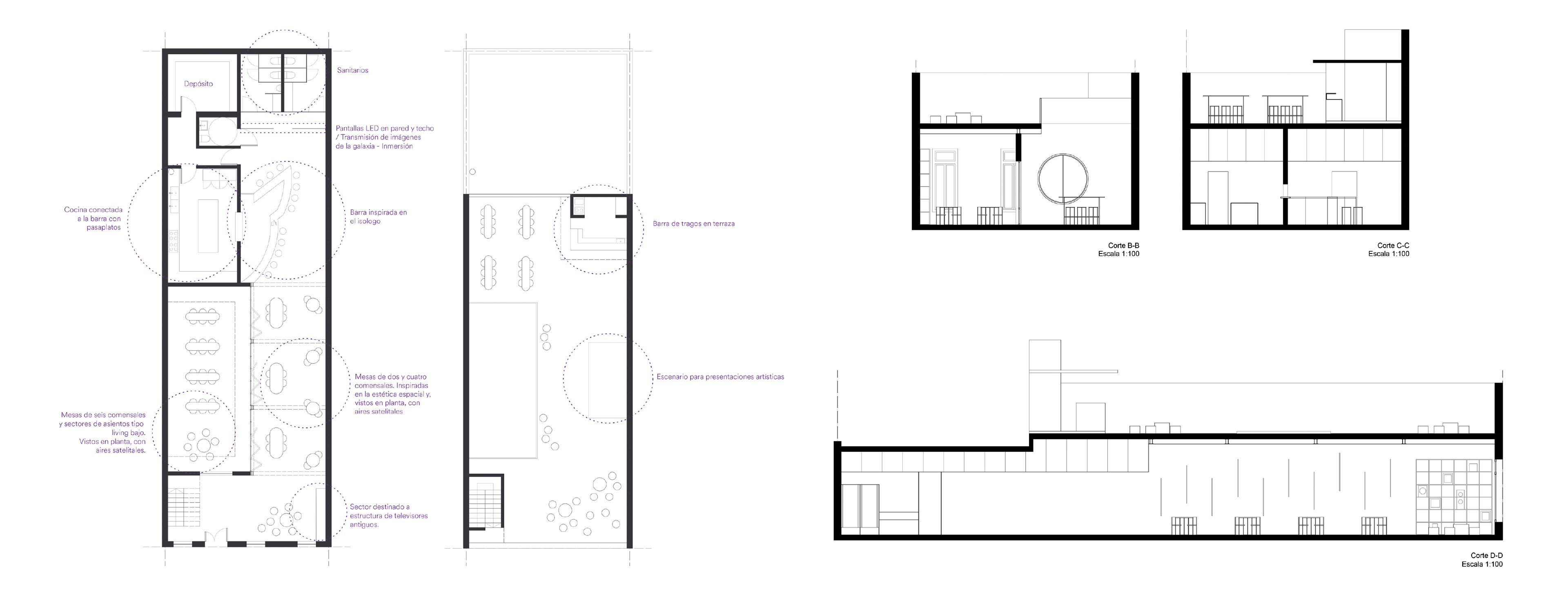
ROCKET nace bajo la influencia de la ciencia ficción y los viajes espaciales. fue pensado como un bar nocturno inspirado en el espacio exterior, con áreas que articulan el adentro y el afuera. Este bar, conceptualmente, una cápsula del tiempo hacia ese momento en el que se forjaron los recuerdos más fuertes.
La imagen de la nave espacial necesita estar presente, y se funde con el nombre de la marca, jugando con la forma de la letra “K”, visualmente fuerte, que contribuye a cerrar la figura de la cola del cohete.
La imagen de la nave espacial necesita estar presente, y se funde con el nombre de la marca, jugando con la forma de la letra “K”, visualmente fuerte, que contribuye a cerrar la figura de la cola del cohete.
Group academic project
ROCKET was born under the influence of science fiction and space travel. It was conceived as a nighttime bar inspired by outer space, with areas that connect the inside and the outside. Conceptually, this bar functions as a time capsule to that moment when the strongest memories were forged.
The image of the spaceship needs to be present and merges with the brand’s name, playing with the shape of the letter “K” — visually strong — which helps complete the figure of the rocket’s tail.
The image of the spaceship needs to be present and merges with the brand’s name, playing with the shape of the letter “K” — visually strong — which helps complete the figure of the rocket’s tail.